Barrierefrei-Menü
Schrift
NormalGroßSehr groß
Kontrast
NormalStark
Bilder
AnzeigenAusblenden
Leichte Sprache
AusEin
Vorlesen
Vorlesen starten
Vorlesen pausieren
Stoppen

Gesamtplanung Schulanlage Mösli


Ausgangslage

Gemäss der vom Grossen Gemeinderat (GGR) am 29. August 2019 genehmigten Schulraumplanung muss die Schulanlage Mösli um je zwei Kindergarten- und Tagesschuleinheiten erweitert werden. Da die Schulanlage Mösli als schützenswertes K-Objekt im Inventar der Denkmalpflege enthalten ist, ist eine Erweiterung nicht ohne weiteres möglich, dem sorgfältigen Umgang mit dem Bestand ist besonders Rechnung zu tragen.

Gestützt auf das im Jahr 2019 erarbeitete grobe Richtprojekt wurde anfangs 2020 ein zweistufiges Planerwahlverfahren durchgeführt. Die Fachjury entschied sich nach eingehender Prüfung der eingereichten Lösungsansätze für das Generalplanungsteam unter der Leitung der Fiechter & Salzmann Architekten GmbH aus Zürich. Das Siegerprojekt orientiert sich stark am erwähnten Richtprojekt und baut die bestehende, denkmalgeschütz-te Schulanlage auf eine selbstverständliche und wirtschaftliche Art und Weise weiter.

Für die Gesamtplanung Mösli hat der GGR am 17. September 2020 einen Projektierungskredit von CHF 778‘000 und am 24. Juni 2021 einen Nachkredit von CHF 310‘000 bewilligt. Ergänzt wird das Projekt u.a. mit einem neuen Allwetterplatz mit zwei Aussengeräteräumen, der Sanierung des bestehenden Flachdachs auf dem Spezialtrakt inkl. einer grossflächigen Photovoltaikanlage und der Umgestaltung der Parkierung mit Anpassungen und Verkehrsberuhigungsmassnahmen auf der Kilchgrundstrasse. Hinzu kommen die Anpassung der Umgebungsanlage im Bereich der Schulpavillons, eine neue Schliessanlage und die Erdbebenertüchtigung der bestehenden Gebäude.

Luftaufnahme Situation aktuell
Luftaufnahme Situation aktuell

Projektstand

Das Generalplanerteam hat im Herbst 2020 mit den Arbeiten am Vorprojekt begonnen, im Sommer 2021 wurden bereits das Bauprojekt und der Kostenvoranschlag fertiggestellt. Der Ausführungskredit in der Höhe von CHF 9'882'000 wurde vom GGR am 28. Oktober 2021 zuhanden der Volksabstimmung vom 13. Februar 2022 genehmigt. Die Stimmbevölkerung hat dem Kredit mit grosser Mehrheit zugestimmt.

Im März 2023 wurde die Baubewilligung erteilt, am 17. Mai 2023 ist die Grundsteinlegung erfolgt. Die Arbeiten sind zügig vorangeschritten, so dass Ende Juli 2024 die Inbetriebnahme der beiden Kindergärten und der Tagesschule erfolgen konnte. Noch im Gange sind die Umgebungsarbeiten, diese werden bis nach den Herbstferien 2024 auch fertiggestellt.

Projektübersicht

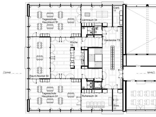
Hauptbestandteil ist der zweigeschossige Erweiterungsneubau westlich des Spezialtraktes (1). Dieser beinhaltet zwei Kindergärten im Erdgeschoss, eine Tagesschule mit zwei Haupträumen im Obergeschoss sowie Haustechnik-, Musik- und Lagerräume im Untergeschoss. Durch den Neubau wird der bestehende, denkmalgeschützte Kindergarten- und Tagesschul-Pavillon (2) verdrängt. Durch den Erweiterungsneubau fällt auch der bestehende Aussenspielbereich zwischen dem Spezialtrakt und dem Pavillon weg. Dieser wird durch einen neuen Allwetterplatz (3) mit zwei Aussengeräteräumen (4) auf dem nördlichen Teil des bestehenden Rasenspielfeldes ersetzt. Dadurch muss auch das Rasenspielfeld (5) angepasst und die umliegenden Aussenanlagen ergänzt und teilweise saniert werden.

Situationsplan Gesamtplanung
Situationsplan Gesamtplanung

Die Parkplätze liegen heute mitten im Areal, zwischen zwei Schulpavillons. Damit der Pausenbereich autofrei und so die Volksmotion "Sichere Schulhausplätze in Ostermundigen" umgesetzt werden kann, müssen die Parkplätze neu auf der Kilchgrundstrasse platziert werden (6). Mit dieser Umgestaltung werden auch die geforderten Verkehrsberuhigungsmassnahmen realisiert. Ein weiterer Bestandteil ist die Sanierung des Flachdachs auf dem Spezialtrakt inkl. einer neuen Photovoltaikanlage (7). Hinzu kommen punktuelle Massnahmen im Bereich der bestehenden Umgebungs- und Entwässerungsanlagen bei den bestehenden Schulpavillons (8) sowie Massnahmen zur Erdbebenertüchtigung an den bestehenden Gebäuden (9).

Nächste Schritte

Die Umgebungsarbeiten sind noch im Gange und werden bis nach den Herbstferien 2024 abgeschlossen. Ein Eröffnungsanlass ist zurzeit in Vorbereitung.

Pläne & Visualisierungen

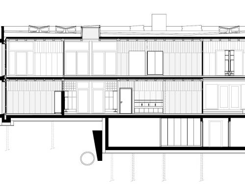
Grundrisse & Querschnitt

Visualisierungen Innenräume

Visualisierungen AussenRaum


Kontakt

Interessierte Bürgerinnen und Bürger können sich bei der Gemeinde Ostermundigen, Abteilung Hochbau, informieren. 

Datenschutzhinweis

Hinweis zur Verwendung von Cookies. Um unsere Webseite für Sie optimal zu gestalten und fortlaufend verbessern zu können, verwenden wir Cookies. Durch die weitere Nutzung der Webseite stimmen Sie der Verwendung von Cookies zu. Weitere Informationen hierzu erhalten Sie in unseren Datenschutzinformationen

Notwendige Cookies werden immer geladen