Wiesenstrasse 24 - Hättenberg
Der Ersatzneubau für den Kindergarten an der Wiesenstrasse 26 wurde im Januar 2023 in Betrieb genommen.
Der Ersatzneubau an der Wiesenstrasse 24 (Hättenberg) ist der vierte und letzte "Einzelkindergarten", der im Rahmen der Gesamtplanung Kindergärten erstellt wird. Er hat den Altbau aus dem Jahr 1972 ersetzt. Der eingeschossige Neubau basiert auf dem gleichen Grundriss-, Material- und Konstruktionsprinzip wie die übrigen Neubauten der Gesamtplanung. Dank der Modulbauart aus vorgefertigten Holzelementen konnte der Kindergarten trotz spätem Baubeginn (Frühjahr 2022) innerhalb kurzer Zeit erstellt und im Januar 2023 in Betrieb genommen werden.

Projekt
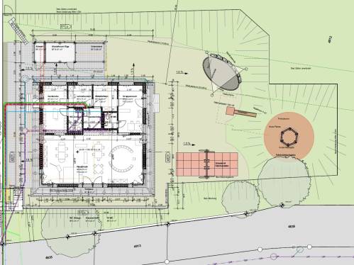
Das Konzept basiert auf einem fast quadratischen Grundriss mit einer Geschossfläche von ca. 190 m2 und einem umlaufenden Aussenspieldeck. Das Erdgeschoss liegt knapp 60 cm über der Umgebung, das Gebäude ist nicht unterkellert. Hauptelement des Kindergartens ist der grosse, nach Südwesten ausgerichtete Hauptraum mit integrierter Küche. Im Gebäudezentrum liegen ein Putz- und Haustechnikraum sowie die beiden WC-Anlagen (Kinder & IV/Lehrer-WC). Auf der Rückseite befinden sich die Garderobe, das Lehrerbüro und der Materialraum sowie der Gruppenraum. Die Nettogeschossfläche des Einzelkindergartens beträgt insgesamt ca. 160 m2.
Das Gebäude ist als Modulbau aus vorgefertigten Holzelementen konzipiert, es erfüllt den Standard nach Minergie©-A-Eco und ist mit einer kontrollierten Lüftung ausgestattet. Es verfügt über eine Photovoltaik-Anlage auf dem Dach, damit wird mehr Strom erzeugt, als der Kindergarten selber benötigt. Die Wärmeerzeugung basiert auf einer Luft-Wasser-Wärmepumpe, die Verteilung erfolgt über eine Bodenheizung. Die Beleuchtung basiert auf LED-Lampen mit Tageslichtsteuerung. Dank der sehr guten Wärmedämmung und dem optimierten Gebäudevolumen können die Betriebskosten (Wärme, Strom) massiv reduziert werden.
Eine grosse Herausforderung an diesem Standort war die Erschliessung und die Umgebungsgestaltung, da der Kindergarten fast ein Geschoss oberhalb der Strasse liegt und in die steile Böschung eingebettet werden musste. Da gleichzeitig der Waldabstand eingehalten werden musste, blieb für die Positionierung des Moduls nur wenig Spielraum. Dank der Lösung mit der prägnanten Betonstützmauer entlang der Wiesenstrasse konnte das Gebäude so plaziert werden, dass genügend Raum für den für den Kindergartenbetrieb wichtigen Aussenspielbereich übrig blieb.
Projektstand
Mit den aufwändigen Rodungs-, Abbruch- und Demontagearbeiten wurde im März 2022 begonnen. Im April und Mai 2022 wurden die mächtige Stützmauer zur Strassenseite und die Bodenplatte fertiggestellt. Im August wurde mit den Modulbau-Montage begonnen, bis Ende 2022 wurden die Innenausbauarbeiten vorgenommen. Die Inbetriebnahme konnte im Januar 2023 erfolgen. Die Umgebungsarbeiten wurden im Laufe des Sommers 2023 fertiggestellt.
Pläne
Der Altbau
Kontakt
Interessierte Bürgerinnen und Bürger können sich bei der Gemeinde Ostermundigen, Abteilung Hochbau, informieren.
- Telefon: +41 31 930 11 30
- E-Mail: hchbstrmndgnch