Barrierefrei-Menü
Schrift
NormalGroßSehr groß
Kontrast
NormalStark
Bilder
AnzeigenAusblenden
Leichte Sprache
AusEin
Vorlesen
Vorlesen starten
Vorlesen pausieren
Stoppen

Nobsstrasse 19 - Unterdorf


Der Ersatzneubau für den Kindergarten an der Nobsstrasse 19 (Unterdorf) wurde im Sommer 2020 in Betrieb genommen.

Der Kindergarten an der Nobsstrasse 19 (im Unterdorf) ist der zweite "Einzelkindergarten", der im Rahmen der Gesamtplanung Kindergärten erstellt wurde. Er ersetzte den Altbau aus dem Jahr 1972. Der eingeschossige Neubau basiert auf dem gleichen Grundriss- und Konstruktionsprinzip wie alle anderen Neubauten. Dank der gewählten Modulbauart aus vorgefertigten Holzelementen konnte der Kindergarten innerhalb sehr kurzer Zeit erstellt und im August 2020 bereits in Betrieb genommen werden.

Projekt

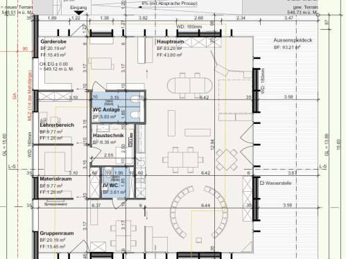
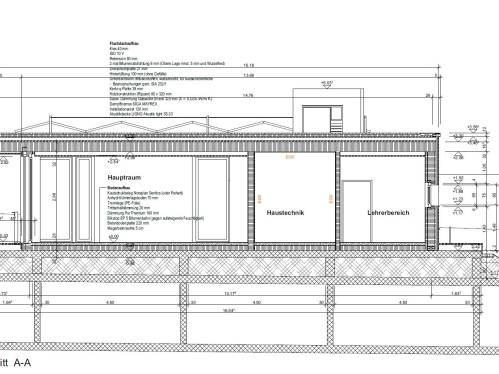
Das Konzept basiert auf einem fast quadratischen Grundriss mit einer Geschossfläche von ca. 190 m2 und einem umlaufenden Aussenspieldeck. Das Erdgeschoss liegt knapp 60 cm über der Umgebung, das Gebäude ist nicht unterkellert. Speziell am Projekt ist, dass das Gebäude zu 2/3 über der bestehenden Einstellhalle liegt, dies hatte aufwändige Fundations- und Abdichtungsarbeiten zur Folge.

Hauptelement des Kindergartens ist der grosse, nach Süden ausgerichtete Hauptraum mit integrierter Küche. Im Gebäudezentrum liegen ein Putz- und Haustechnikraum sowie die beiden WC-Anlagen (Kinder & IV/Lehrer-WC). Auf der Rückseite befinden sich die Garderobe, das Lehrerbüro und der Materialraum sowie der Gruppenraum. Die Nettogeschossfläche des Einzelkindergartens beträgt insgesamt ca. 160 m2.

Das Gebäude ist als Modulbau aus vorgefertigten Holzelementen konzipiert, es erfüllt den Standard nach Minergie©-A-Eco und ist mit einer kontrollierten Lüftung ausgestattet. Es verfügt über eine Photovoltaik-Anlage auf dem Dach, damit wird mehr Strom erzeugt, als der Kindergarten selber benötigt. Die Wärmeerzeugung basiert auf einer Luft-Wasser-Wärmepumpe, die Verteilung erfolgt über eine Bodenheizung. Die Beleuchtung basiert auf LED-Lampen mit Tageslichtsteuerung. Dank der sehr guten Wärmedämmung und dem optimierten Gebäudevolumen können die Betriebskosten (Wärme, Strom) massiv reduziert werden.

Fotos Aussen

Fotos Bauphase

Pläne


Kontakt

Interessierte Bürgerinnen und Bürger können sich bei der Gemeinde Ostermundigen, Abteilung Hochbau, informieren. 

Datenschutzhinweis

Hinweis zur Verwendung von Cookies. Um unsere Webseite für Sie optimal zu gestalten und fortlaufend verbessern zu können, verwenden wir Cookies. Durch die weitere Nutzung der Webseite stimmen Sie der Verwendung von Cookies zu. Weitere Informationen hierzu erhalten Sie in unseren Datenschutzinformationen

Notwendige Cookies werden immer geladen